|
288 millió Ft
|
|
| Alapterület | 170 m2, 550 m2-es telken |
| Szobák száma | 5 szoba |
| Építési mód | Tégla |
| Állapot | Kiváló |
| Emelet | Földszint |
További paraméterek
Jó közlekedéssel
Kertkapcsolatos
Zöldövezeti- Kilátás: Panorámás
- Fűtés: Padlófűtés
- Bútorozottság: Gépesített
- Szintek száma: 2
- Komfort: Dupla komfort
Részletes leírás
Balatoni panorámás családi ház Alsóörsön, a Balaton-felvidék gyöngyszemében!
Képzelje el otthonát a Balaton északi partján, Alsóörs egyik legszebb részén, ahol a modern, panorámás családi ház tökéletes harmóniát kínál a luxus, a kényelem és a természet szépsége között.
Ez az elismert tervező által megálmodott ingatlan a XXI. századi igényekre szabva, prémium anyagokkal és gondos kivitelezéssel várja új tulajdonosát. A ház építése mögött szenvedélyes alkotás és minőség iránti elkötelezettség áll – olyan otthont teremtünk, mintha magunknak építenénk.
Lokáció előnyei (Balaton-felvidék, Alsóörs):
Lenyűgöző balatoni panoráma, a strand pár perc sétával elérhető.
Csendes, exkluzív környék, közel a Balaton-felvidék túraútvonalaihoz és borvidékeihez.
Balatonfüred és Veszprém gyorsan megközelíthető, tökéletes egyensúly a nyugalom és a pezsgő balatoni élet között.
Ideális választás állandó lakhelynek vagy nyaralónak a természet és a víz szerelmeseinek.
A ház tulajdonságai:
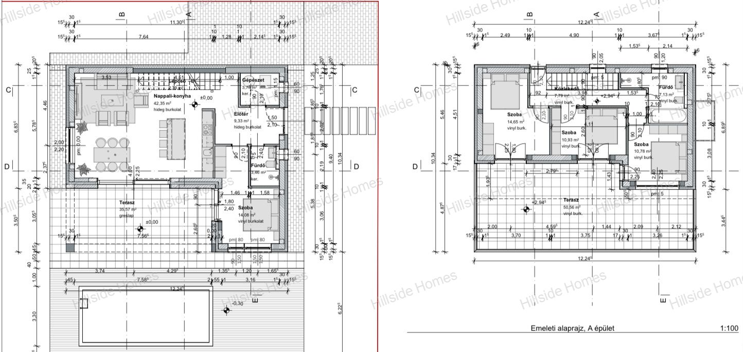
Hasznos alapterület: 130 m² + 80 m² erkély/terasz, 550 m²-es telken.
Elrendezés: nappali-étkező-konyha, 4 hálószoba, 2 fürdőszoba, nagy panorámás terasz.
Magas minőségű olasz hidegburkolatok, mészkő és parketta burkolatok.
Bútorozott konyha prémium Bosch, Siemens és AEG gépekkel.
Edzett üvegkorlátok kívül-belül, elegáns és modern megjelenéssel.
Műszaki felszereltség:
Porotherm 30 cm-es téglafalazat grafitos szigeteléssel, „közel nulla” energiaigényű besorolás.
6 légkamrás, 3 rétegű üvegezésű nyílászárók távirányítós alumínium redőnyökkel.
Hőszivattyús padló- és mennyezetfűtés-hűtés, energiahatékony és környezetbarát megoldások.
Grohe szaniterek (WC és csaptelepek) a prémium minőség jegyében.
Opcionálisan medence építhető, az Ön igényeire szabva.
Közlekedés:
Könnyű megközelíthetőség a 71-es főúton, Balatonfüred 10 perc, Veszprém 15 perc autóval.
A balatoni kerékpárút és buszmegálló a közelben, kényelmes közlekedési lehetőségek.
Gyalogosan is elérhető a strand és a helyi szolgáltatások, tökéletes az autómentes kikapcsolódáshoz.
Ez a ház több mint egy ingatlan – egy életstílus, ahol a balatoni panoráma, a modern technológia és a prémium kivitelezés találkozik. Referenciaházaink megtekinthetőek, így saját szemével győződhet meg szenvedélyünkről és minőség iránti elkötelezettségünkről. Foglalja le most álmai otthonát, és legyen részese a Balaton varázsának.
További információért keressen bizalommal.

