Eladó Családi ház, Bocskaikert
#121800919
|
130 millió Ft
|
|
| Alapterület | 174 m2, 1 036 m2-es telken |
| Szobák száma | 3 szoba + 3 félszoba |
| Építési mód | Tégla |
| Állapot | Felújított |
| Emelet | nincs megadva |
További paraméterek
CSOK igényelhető- Kilátás: Udvari
- Fűtés: Kondenzációs kazán
- Bútorozottság: Részben bútorozott
- Szintek száma: 5
- Komfort: Dupla komfort
- Internet: Szélessávú (>10Mbps)
- Akadálymentesítés: Nem akadálymentesített
Részletes leírás
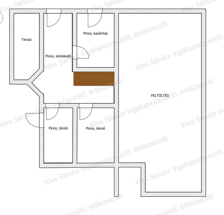
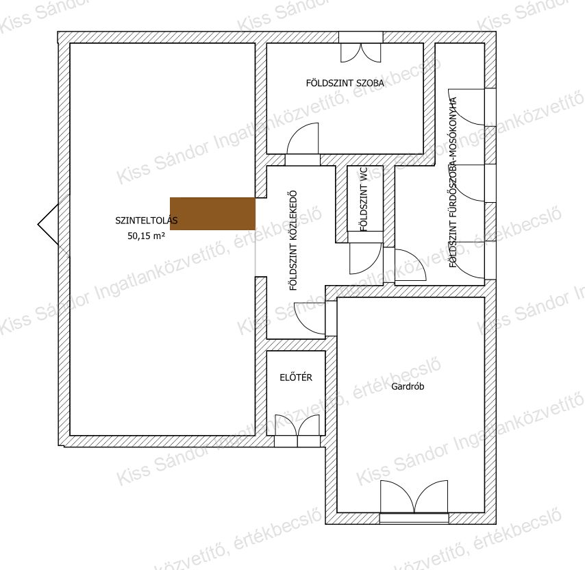
Szinteltolásos családi ház eladó
Bocskaikert, Németh László utca 7. szám alatt, 1036 m2-es telken lévő pince, földszint, félemelet, emelet, tetőtér szinteltolásos nagy családi ház eladó. Az épület a 80-as években, 30 cm-es tégla falazattal épült, és néhány éve grafitos hőszigeteléssel le lett szigetelve, pince 39 m2, lakóterület 135 m2. Az épület fűtése új kondenzációs gázkazánnal, padlófűtéssel megoldott, meleg víz ellátás elektromos villanybojlerről biztosított. Az udvaron lévő melléképület korábban több gépjármű elhelyezése is alkalmas volt, de a bejárat műanyag nyílászárókkal le lett zárva, így jelenleg tároló, műhely funkciót lát el, mely termésetesen visszaállítható eredeti állapotba. Jelenleg parkolás az udvaron megoldható.

