Nyitólap Hirdetésfeladás Kapcsolat

A vidék színe java
Eladó Családi ház, Győr, Sárás
#143700811
43 millió Ft
Alapterület 47 m2,  310 m2-es telken
Szobák száma 3 szoba
Építési mód Tégla
Állapot Felújítandó
Emelet nincs megadva

További paraméterek

  • Jó közlekedéssel
  • Kertkapcsolatos
  • Zöldövezeti
  • Kilátás: Udvari
  • Fűtés: Klímás hűtés-fűtés
  • Bútorozottság: Részben bútorozott
  • Szintek száma: 2
  • Komfort: Komfort
  • Akadálymentesítés: Nem akadálymentesített

Részletes leírás

Győr-Sáráson hétvégi ház eladó

Megújulásra váró hétvégi ház Győr-Sáráson eladó

Alakítsd át állandó otthonná, vagy építs teljesen újat a helyére!

 

KINEK AJÁNLOM EZT AZ INGATLANT?

 

Neked való, ha

- Győr centrumának közelében keresel ingatlant

- elvonulnál a város zajától, de nem költöznél túl messze

- házat építenél magadnak max. 93 m2 alapterülettel

- jó levegőn képzeled el az otthonodat

- nem ijedsz meg a felújítástól, korszerűsítéstől

 

HOL TALÁLHATÓ AZ INGATLAN?

- Győr-Sárás I-en

- hétvégi házas övezetben

 

Nézd meg a videót az ingatlanról!

https://youtu.be/C3BZTcq13kU

 

MI JELLEMZŐ A BEÉPÍTHETŐSÉGRE?

- kivett, hétvégi ház, udvar besorolás

- Lf05/0/30/40-/039/02-12/25/ beépíthetőség

- falusias lakóövezet

- 310 m2 telek 30% beépíthetőséggel

 

KÖZMŰVEK

- villany (3 x 16A)

- vezetékes víz

- vezetékes csatorna

- gázvezeték az utcafronton

 

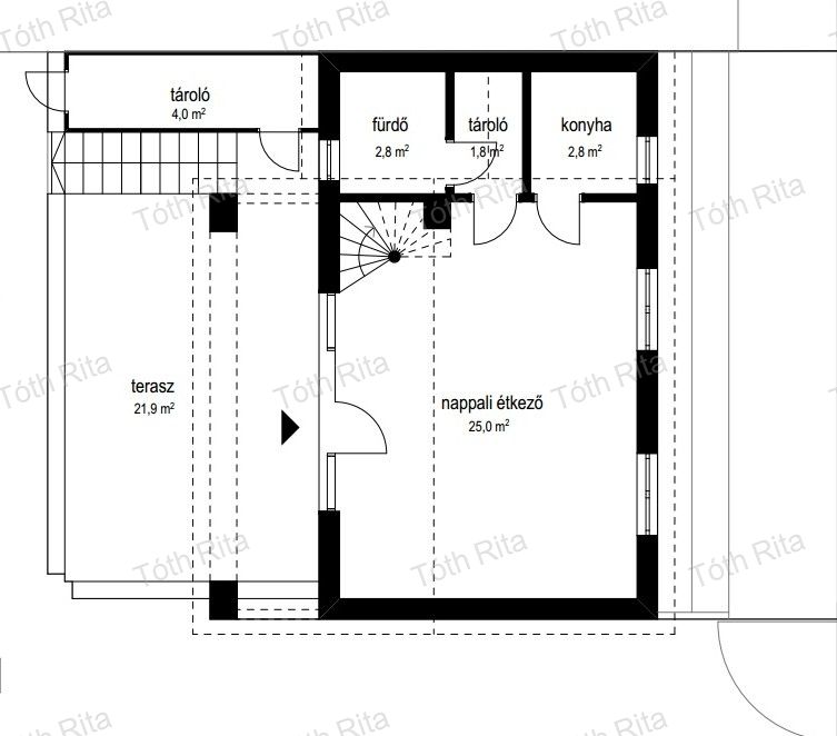
MILYEN AZ ÉPÜLET?

- kétszintes téglaház

- 1980-ban épült

- 47 m2 alapterület

- 22 m2 terasz

- 12 m2 pince

- 7 m2 tároló

 

MENNYIBE KERÜL AZ INGATLAN?

- az irányára 43 millió forint

- 4-6 hónap múlva birtokba veheted

- piaci lakáscélú jelzáloghitelt tudsz igényelni

a vásárláshoz vagy építkezéshez

 

Nézd meg az ingatlant személyesen!

 

Tóth Rita

Ingatlanközvetítés prémium módszerekkel

+36309059273 (hétfőtől péntekig 9-18 óra között)

tothrita.hu

Kapcsolat

Tóth Rita

Ingatlanközvetítés prémium módszerekkel

Ossza meg a hirdetést:
FacebookGplusTwitter