Nyitólap Hirdetésfeladás Kapcsolat

A vidék színe java
Eladó Családi ház, Győrzámoly
#196400802
95 millió Ft
Alapterület 96 m2,  625 m2-es telken
Szobák száma 4 szoba
Építési mód Tégla
Állapot Új építésű
Emelet nincs megadva

További paraméterek

  • CSOK igényelhető
  • Kertkapcsolatos
  • Kulcsrakész!
  • Otthon Start 3%-os hitellel
  • Remek ajánlat!
  • Új építésű!
  • Fűtés: Kondenzációs kazán
  • Komfort: Összkomfort

Részletes leírás

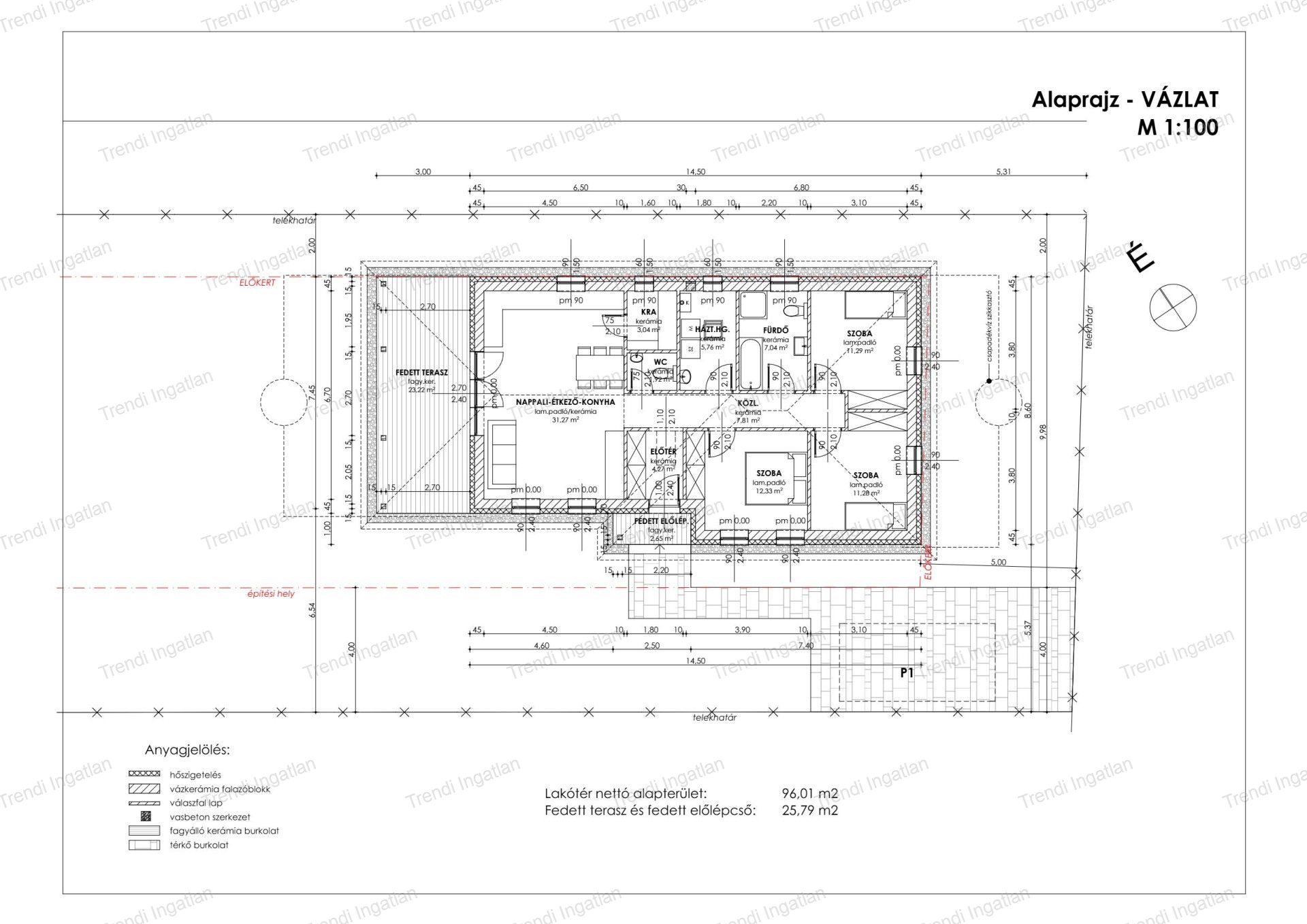
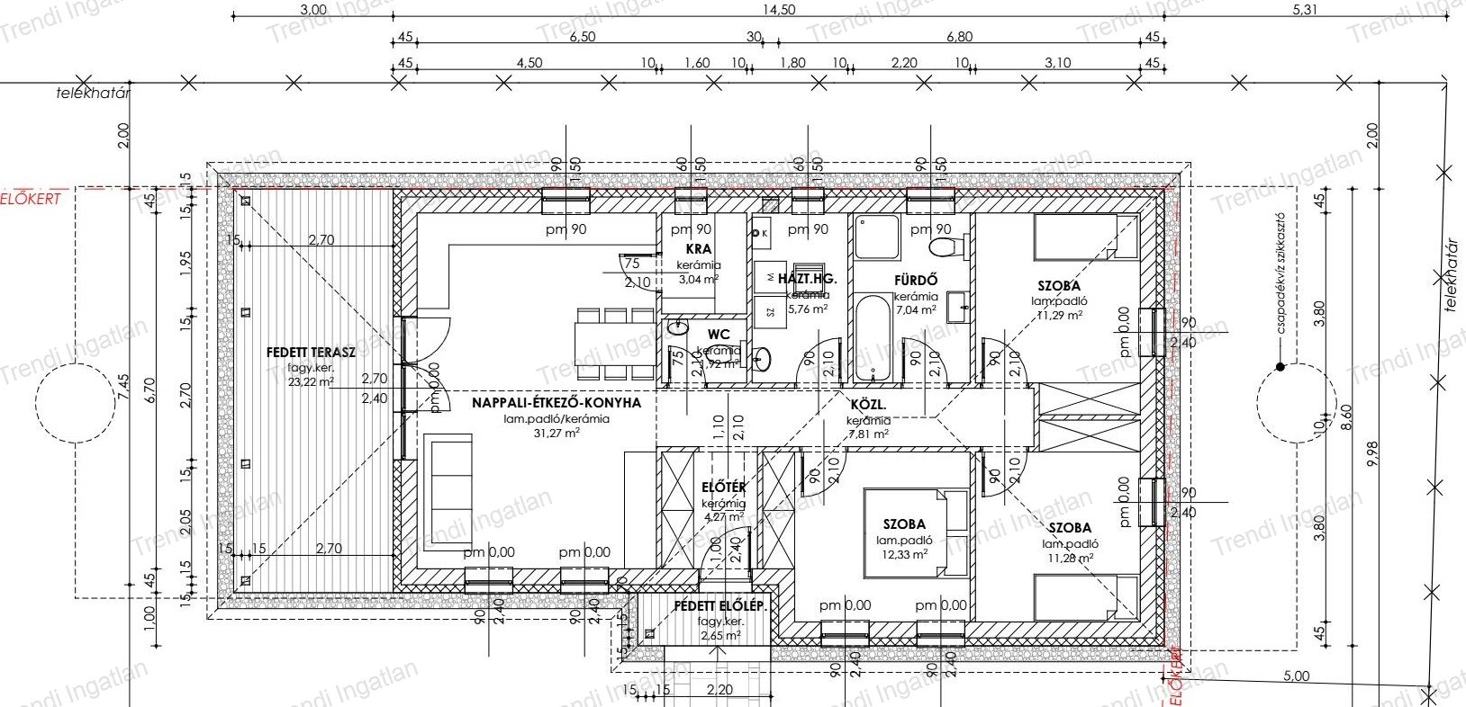
Kulcsrakész nappali + 3 szobás ház

Remek ajánlat! 

Győrzámolyon új építésű 96,01 nm-es, nappali + 3 szobás családi ház 625 nm-es telken kulcsrakész állapotban eladó. 

A kiváló elosztású házban amerikai konyhás nappali, 3 szoba, fürdőszoba, háztartási helyiség, külön WC, kamra, közlekedő, előtér található. A nappaliból nyílik 23,22 nm-es terasz. A ház belső elrendezése készültségi fokhoz mérten még változtatható.

A ház 30-as falazóelemből, 15 cm-es homlokzati szigeteléssel, 3 rétegű műanyag nyílászárókkal kerül kivitelezésre. Az ingatlan fűtését és melegvíz ellátását kondenzációs kazán biztosítja. Az ár 2 db klímát, redőnyöket és színes ereszt tartalmazza. Felár ellenében hőszivattyús fűtés, kerti csap, riasztó előkészítés, térkövezés kérhető.

Várható átadás 2026 év vége.

Az ingatlan kulcsrakész ára: 95.000.000 Ft. A kulcsrakész ár nem tartalmazza a konyhabútort.
Az ár tartalmazza a telek árát is.

Bővebb információkért forduljon hozzám bizalommal.
Hétköznap és hétvégén is várom hívását!

Díjmentes, bankfüggetlen hitelügyintézéssel állunk rendelkezésére.

A hirdetésben feltüntetett képek illusztrációk.

Kapcsolat

Neizer Éva

Ingatlanértékesítő

Ossza meg a hirdetést:
FacebookGplusTwitter