|
89 millió Ft
|
|
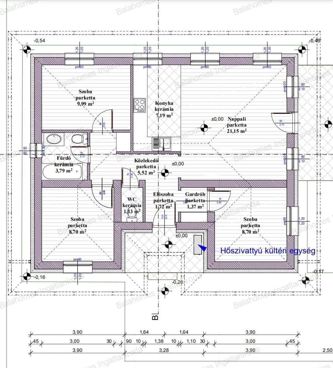
| Alapterület | 92 m2, 500 m2-es telken |
| Szobák száma | 4 szoba |
| Építési mód | Tégla |
| Állapot | Új építésű |
| Emelet | nincs megadva |
További paraméterek
CSOK igényelhető
Új építésű
Zöldövezeti- Kilátás: Udvari
- Fűtés: Hőszivattyú
- Szintek száma: 1
- Komfort: Összkomfort
- Energetika: A++
Részletes leírás
Új építésű családi ház Siófokon
Új építésű otthon hőszivattyús fűtéssel, egyedi kialakítási lehetőséggel
A BALAHOMES kínálatából eladóvá vált egy modern, új építésű, önálló családi ház vagy nyaraló, mely ideális választás lehet azoknak, akik energiatakarékos és testreszabható otthonra vágynak.
A gondos tervezésnek köszönhetően az ingatlan kialakítása maximálisan kihasználja a teret, nettó 72 m2-en. Három kényelmes szobával, egy tágas nappalival, jól felszerelt konyhával, fürdőszobával, mellékhelyiséggel és praktikus gardróbbal. 12 m2-es terasz is tartozik a házhoz és egy 500 m2-es udvar.
Az otthon energiatakarékosságáról korszerű hőszivattyús padlófűtés gondoskodik, H tarifás mérőórával, ami jelentősen hozzájárul az alacsony fenntartási költségekhez. A 15 cm homlokzati, 10 cm lábazati és 25 cm mennyezeti szigetelés, valamint a 6 légkamrás, 3 rétegű műanyag ablakok biztosítják a kellemes hőmérsékletet és a gazdaságos üzemeltetést egész évben.
Az ingatlan építése 2026 februárjában kezdődik, de ha Ön korábban megtalálja benne álmai otthonát, az átadási időpontot az Ön igényeihez igazítjuk. Ráadásul a kivitelezés korai szakaszában még lehetősége van saját ízlése szerint alakítani a belső teret, valamint külön kérésre napelem rendszert is igényelhet, tovább növelve ezzel az otthon értékét és energiafüggetlenségét.
Amennyiben felkeltette érdeklődését ez az egyedi lehetőségeket rejtő, modern otthon, kérjük, vegye fel velünk a kapcsolatot. Kollégáink készséggel állnak rendelkezésére további információkkal és személyes megtekintési időpont egyeztetésével kapcsolatban.
Vásárolna, de nincs rá keret? Kollégánk díjmentes, banksemleges hitelügyintézéssel áll rendelkezésére.
Szolgáltatásaink teljes körűek: számíthat ránk értékbecslés, home staging, lakberendezési tanácsadás, valamint átalakítási és felújítási munkák megszervezésében is.
BALAHOMES - "Mi elvezetünk az otthonodba!"

