Nyitólap Hirdetésfeladás Kapcsolat

A vidék színe java
Eladó Családi ház, Szolnok, Tallinn
#195200709
90 millió Ft
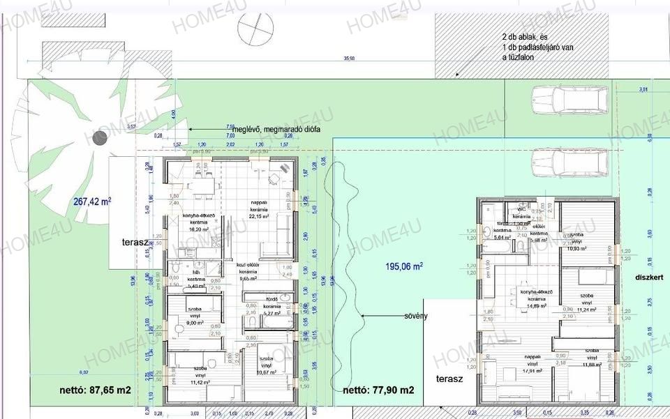
Alapterület 88 m2,  267 m2-es telken
Szobák száma nincs megadva
Építési mód Könnyűszerkezetes
Állapot Új építésű
Emelet nincs megadva

További paraméterek

Részletes leírás

Új építésű öko ház eladó!

Új építésű öko ház eladó!
Megvételre kínálok kettő vadonatúj, környezettudatos és energiatakarékos családi házat Szolnok kiemelt
övezetében a Bimbó úton, csendes, mégis jól megközelíthető részén. Az ingatlan a legmodernebb öko technológiákkal épül, így hosszú távon alacsony rezsiköltséget és kényelmes, egészséges életteret biztosít.
Főbb jellemzők:
-Alapterület: 88 m2 illetve 78 m2
-Telek: 267 m2 illetve 195 m2
-Építés éve: 2025
-Energiaellátás: napelem rendszer, hűtő-fütő klíma, H-tarifa
-Szigetelés: prémium, 3 rétegű nyílászárók, korszerű hőszigetelés
-Energetikai besorolás: A++
-Kert: természetközeli kialakítással
Előnyök:
-Új építésű
-Alacsony fenntartási költségek
-Fenntartható és környezetbarát megoldások
-Modern design, világos, tágas belső terek
Elhelyezkedés: Szolnok nyugodt részén, jó közlekedéssel, közelben iskola, óvoda, bolt, játszótér
Ár: Irányár 90 millió illetve 80 millió
Ideális választás azoknak, akik modern, energiatakarékos otthonban szeretnének élni, kompromisszumok nélkül!
Ha hirdetésem felkeltette érdeklődését, további információkért várom megtisztelő hívását a hét bármely napján.
Bátaszékiné Tünde
Hirdesse nálam ingatlanát. Csatlakozzon meglévő kedves ügyfeleim körébe ön is!

Kapcsolat

Bátaszéki Jánosné

Ossza meg a hirdetést:
FacebookGplusTwitter