Nyitólap Hirdetésfeladás Kapcsolat

A vidék színe java
Eladó Családi ház, Vecsés, Felsőhalom
#209002020
114.5 millió Ft
Alapterület 124 m2,  300 m2-es telken
Szobák száma 5 szoba
Építési mód Tégla
Állapot Új építésű, azonnal költözhető
Emelet nincs megadva

További paraméterek

  • Azonnal költözhető
  • CSOK igényelhető
  • Jó közlekedéssel
  • Kertkapcsolatos
  • Zöldövezeti
  • Kilátás: Kertre néző
  • Fűtés: Hőszivattyú
  • Komfort: Dupla komfort
  • Internet: Optikai

Részletes leírás

Megvételre kínálunk Vecsésen egy új építésű 124 m²-es, HŐSZIVATTYÚS, teraszos, 5 szobás, dupla komfortos, gardróbos, dupla garázsos,családiházat.

Megvételre kínálunk Vecsésen egy új építésű 124 m²-es, HŐSZIVATTYÚS, teraszos, 5 szobás, dupla komfortos, gardróbos, dupla garázsos, családiházat. A ház tájolása és elosztása kiváló, tágas, világos, nyitott nagy terekkel rendelkezik.

Az ingatlan igényes kivitelezéssel, minőségi alapanyagokból, átgondolt tervezéssel, egyedi belső kialakítással készült, ahol a kényelem és az átgondolt tervezés mellett az energia takarékosság volt a fő szempont. Az ingatlan nappalija egy 14 nm-es teraszon keresztül kertkapcsolatos. Az ingatlan fűtéséről egy modern, energia takarékos, innovatív levegő-víz hőszivattyú gondoskodik H tarifás üzemeltetéssel.
Ennek köszönhetően a rezsi költségek minimalizálódnak.

Az ingatlan három darab inverteres  hűtő-fűtő klímával van felszerelve, így télen-nyáron egyöntetű kellemes a hőmérséklet. A használati melegvíz ellátás okos bojlerről történik.

 

A ház egy nagyobb telken fekszik, melyből kb. 280 nm privát kert. Gépjármű beállási lehetőségével a fedett térkövezett gépjármű beállón lehet biztonságosan parkolni.

A kulcsrakész ár tartalmazza az elektromos redőny előkészítést, három rétegű nyílászárókat, riasztó előkészítést, kaputelefon és motoros kapu kiépítést, valamint a klíma előkészítés kiépítését.

 

AZONNAL KÖLTÖZHETŐ!

 

AJÁNDÉK KONYHABÚTORRAL!

 

Társasházi szerződéssel, albetétesítve, külön mérőórákkal.

 

Igénybe vehető lehetséges kedvezmények:
- CSOK
- 5% Áfa visszatérítés
- Babaváró hitel
- Illeték kedvezmény vagy mentesség

 

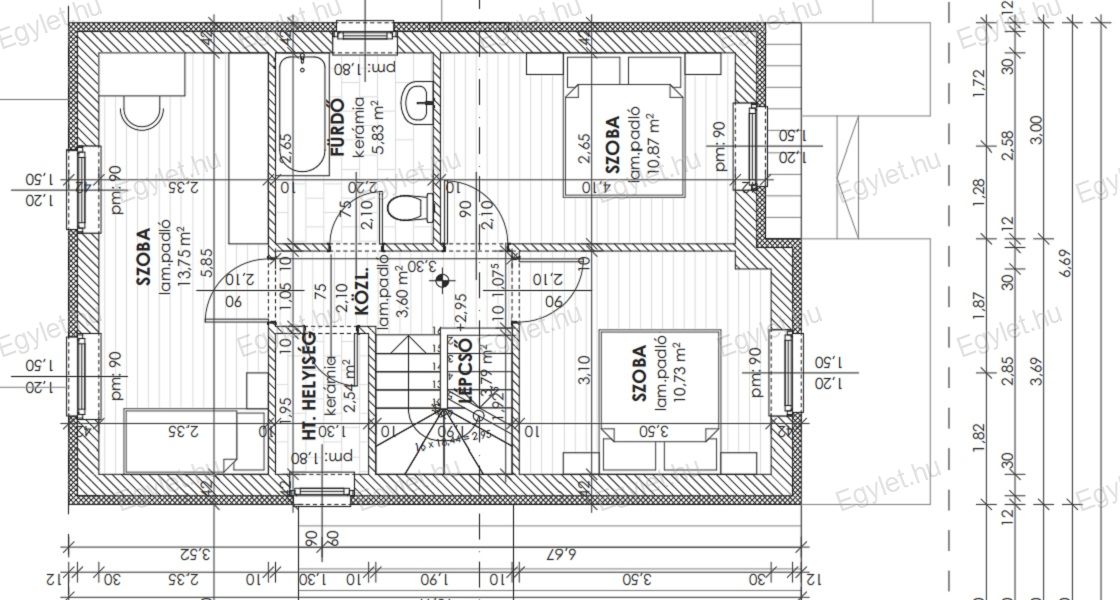
Helyiség lista a földszinten:
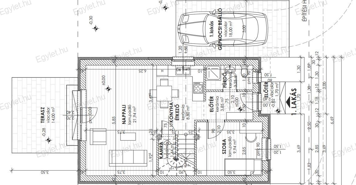
- Előtér
- Fürdőszoba
- Amerikai konyha
- Étkező
- Kamra
- Nappali 
- Szoba
- Terasz

 

Helyiség lista az emeleten:
- Lépcsőház
- Fürdőszoba
- Közlekedő
- Gardrób
- Szoba
- Szoba
- Szoba

 

A hirdetés referencia fotókat is tartalmaz.

 

Az ingatlan biztonságos, nyugodt, csendes, kertes házas övezetében, Vecsés egyik legszebb részén található. A környék fejlett infrastruktúrájának köszönhetően bővelkedik a szociális intézményekben, bölcsőde, óvoda, általános iskola, orvosi intézmények, bevásárlási lehetőségek, találhatóak a közelben.

Közlekedése kiváló, busszal vagy vonattal Budapest központja rövid idő alatt megközelíthető. Az M0-ás, M 4-es, valamint az M 5-ös autópályák pár perc alatt elérhetőek.

 

Hitel, CSOK igénylésben díjmentes ügyintézéssel állunk rendelkezésére! Nálunk kiválaszthatja az Ön számára legkedvezőbb ajánlatot.

Várom megtisztelő érdeklődésüket.

Kapcsolat

Horváth Zoltán

Ossza meg a hirdetést:
FacebookGplusTwitter