Nyitólap Hirdetésfeladás Kapcsolat

A vidék színe java
Eladó Ikerház, Debrecen, Belváros
#720700208
249.9 millió Ft
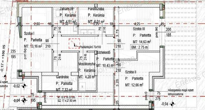
Alapterület 170 m2,  240 m2-es telken
Szobák száma 4 szoba
Építési mód Tégla
Állapot Luxus
Emelet nincs megadva

További paraméterek

  • Azonnal költözhető
  • Jó közlekedéssel
  • Kertkapcsolatos
  • KIHAGYHATATLAN!
  • VILÁGBAJNOK ÁR!
  • Fűtés: Hőszivattyú
  • Szintek száma: 1
  • Komfort: Luxus

Részletes leírás

Újépítésű luxus családi ház a belvárosban – prémium kivitel, azonnal költözhető!

Kivételes lehetőség: eladó egy 170 m²-es, 2025-ben épült, luxus kivitelezésű családi ház Debrecen egyik legjobb belvárosi utcájában!

A modern építés és a belsőépítész által megálmodott design minden részletében a kényelmet és az eleganciát szolgálja.

Miért különleges?

Központi, mégis csendes lokáció – óvoda, iskola, busz, villamos a közelben

Energiatakarékos otthon – A++ besorolás, hőszivattyú, alacsony rezsi

Prémium anyagok és beépített bútorok – AEG gépesített konyha, egyedi fürdőszoba és előszobabútorok, prémium minőségű burkolatok, lámpatestek

Luxus extrák – robotfűnyíró, öntözőrendszer, elektromos redőny, kamerarendszer, riasztó és számtalan "apróság", amire nem is gondolna az ember!

Helyiségek:

amerikai konyhás nappali-étkező

3 hálószoba

3 fürdőszoba

Gardrób, háztartási helyiség

Dupla garázs

 

Ez az ingatlan ideális választás azoknak, akik a belváros szívében keresnek modern, értékálló és minden igényt kielégítő otthont!

Kapcsolat

Bessenyei Róbert

Ingatlanszakértő, Irodavezető

Ossza meg a hirdetést:
FacebookGplusTwitter