Nyitólap Hirdetésfeladás Kapcsolat

A vidék színe java
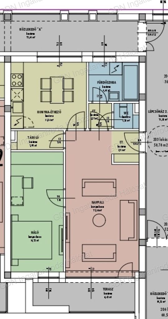
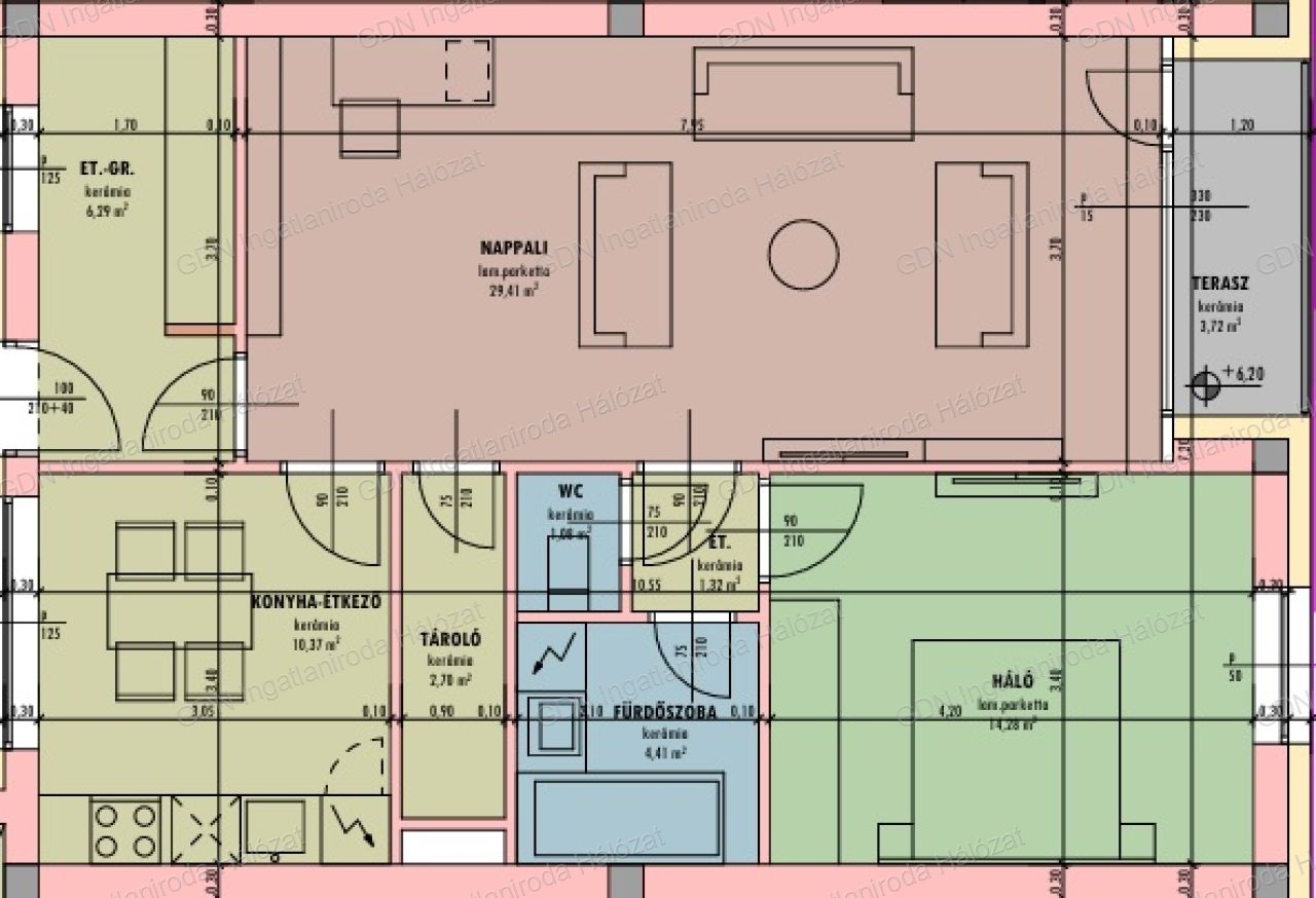
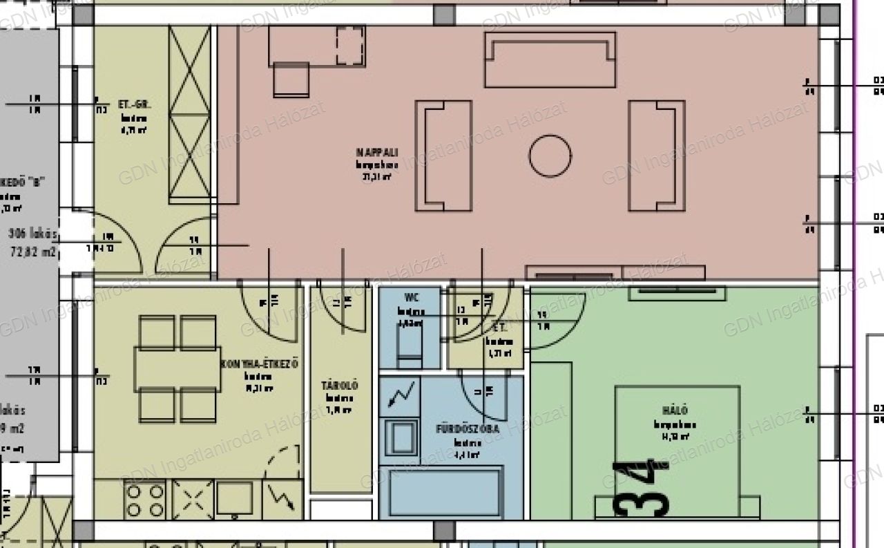
Eladó Panellakás, Nyíregyháza
#388012
62.92 millió Ft
Alapterület 67 m2
Szobák száma 2 szoba
Építési mód nincs megadva
Állapot Új építésű
Emelet 1. emelet

További paraméterek

  • Kilátás: Panorámás
  • Komfort: Összkomfort

Részletes leírás

Lakások eladók Nyíregyháza belvárosában a Kossuth utca 34 szám alatt épülő új építésű A+ besorolású társasházban. Árak: 62.920.000 Ft-tól kezdődően mérettől függően. A modern megjelenésű társas házi épület Nyíregyháza belvárosában, a Kossuth utca – Sólyom-köz saroktelken valósul meg. A gyalogos főbejárat és az alagsorban elhelyezkedő mélygarázs bejárata is a Kossuth utca felől nyílik, míg a földszinten elhelyezkedő teremgarázs megközelítése a Sólyom köz felől létesül. Az alagsorban 16 db a földszinten pedig 12 db fedett kocsi beállót alakítunk ki, melyek külön megvásárolhatók. Az épület földszintjén 1 db iroda és egy tágas fogadó tér lesz, amiből a lépcsőház és lift közelíthető meg. Az I-II-III emelet 7 db és a záró szinten 6 db lakás helyezkedik el, méretüket tekintve : 14 db lakásunk készül ami 60 m2 fölötti, 2 db ami 50-60 m2 közötti. Figyelem! A lakások többsége már elkelt, az aktuálisan elérhetőkről telefonon tudunk tájékoztatást adni! Az új építésű társas ház várhatóan 8 hónapon belül kerül átadásra, mely korszerű hő takarékos építészeti megoldásokat alkalmazva készül el. A falazata monolit vasbeton vázszerkezettel Porotherm 30 X-Therm Rapid dryfix kerámia tégla falazatta épül, mely 12 cm-es EPS Grafit homlokzati hőszigetelést kap. Az épületeken belüli lakáselválasztó falak hangtechnikai méretezésnek megfelelő Porotherm 30 AKU Z hangátló falazóblokkokból készülnek, a szükséges helyeken vasbeton pillérekkel, merevítő falakkal. A lakásokon belüli válaszfalak Ytong PVE 10 NF falazóblokkokból készülnek. Az ablakok és erkélyajtók külső oldalon antracit, belső oldalon fehér színű, korszerű 3 rétegű hőszigetelő üvegezéssel készülnek. Az épületben 1 db 8 személyes (bútorszállításra is alkalmas kivitelű) korszerű hívólift kerül beépítésre. A mélygarázs bejáratánál távirányítással működtethető garázskapu kerül elhelyezésre. Az épület fűtése és meleg víz előállítása központilag történik korszerű hőszivattyúkkal, valamint a lakások hűtését is központi hőszivattyú által működtetett magas fali fain col-ok látják el. A lakások fűtése egyedileg szabályozott (saját termosztáttal) padlófűtés. A lakások hideg és meleg víz elmérőkön keresztül kapcsolódnak a ház rendszerére. A lakások 1x32 A elektromos kapacitással rendelkeznek. A kaputelefon rendszer digitális, ajtónyitó funkcióval ellátott, a bejáratnál kültéri egységgel és lakásonként beltéri egységekkel. A ingatlan ideális választás lehet mindazok számára, akik új építésű, modern energiatakarékos otthont keresnek Nyíregyháza belvárosában. Fontos! Az lakásokra az új 3%-os hitel és CSOK Plusz is igénybe vehető! Magas minőségű anyagok, prémium kivitelezés, 2025-ös energetikai szabványoknak megfelelő modern megoldások. Ha felkeltette érdeklődését, hívja irodánkat bizalommal! Ha hitelre van szüksége éljen ingyenes, személyre szabott hitel ügyintézési szolgáltatásunkkal is.

Kapcsolat

Berki Katalin

Ossza meg a hirdetést:
FacebookGplusTwitter