Nyitólap Hirdetésfeladás Kapcsolat

A vidék színe java
Eladó Téglalakás, Göd
#132105159
139.9 millió Ft
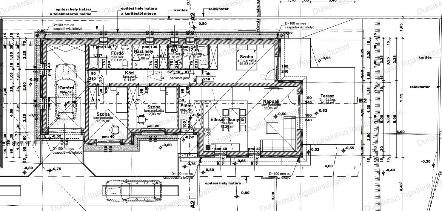
Alapterület 145 m2,  600 m2-es telken
Szobák száma 5 szoba
Építési mód nincs megadva
Állapot nincs megadva
Emelet nincs megadva

További paraméterek

Részletes leírás

Göd központi részén eladó ÚJ ÉPÍTÉSŰ, ÖNÁLLÓ  CSALÁDI HÁZAK!

A házak közel 150 m²-esek, amelyekben amerikai konyhás nappali, szoba, fürdő, kamra,  3 szoba, fürdőszoba kerül kialakításra.

A ház kitűnő minőségben épül 30-as téglából + 12 grafitos szigeteléssel. A fűtésről hőszivattyú gondoskodik, padlófűtéssel.

A kivitelező megbízható, referenciával rendelkezik.
CSALÁDI OTTHONTEREMTÉSI KEDVEZMÉNY (CSOK) és az ILLETÉKKEDVEZMÉNYEK igénybe vehetők, hitelügyintézésben díjtalanul segítséget nyújtunk.

Megtekinthető telefonos időpont-egyeztetés alapján: Lovack Tamás +36205593395

Kapcsolat

Lovack Tamás

Ossza meg a hirdetést:
FacebookGplusTwitter