Nyitólap Hirdetésfeladás Kapcsolat

A vidék színe java
Eladó Téglalakás, Nyíregyháza, Belváros
#721100312
55.44 millió Ft
Alapterület 52 m2
Szobák száma 2 szoba
Építési mód Tégla
Állapot Új építésű
Emelet 1. emelet

További paraméterek

  • Jó közlekedéssel
  • Otthon Start 3%-os hitellel
  • Fűtés: Kondenzációs kazán
  • Bútorozottság: Bútorozatlan
  • Komfort: Összkomfort

Részletes leírás

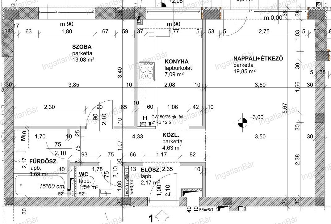
ÚJ Építésű 1. emeleti lakás eladó Nyíregyháza

Új építésű 2 szobás lakás eladó – 52 m² + 8 m² erkély – átadás: 2026. november

Eladásra kínálunk egy modern, 52 m²-es, 1. emeleti lakást egy 12 lakásos, új építésű társasházban.
A lakás 1 szobából, nappaliból, konyha-étkezőből fürdőszobából és erkélyből (8 m²) áll, amely kiváló lehetőséget kínál a kellemes pihenésre. Kérjük tekintse meg alaprajzát a helyiségek elhelyezkedése szempontjából.

 Főbb jellemzők:

Korszerű, energiatakarékos kialakítás

Kondenzációs kazán és padlófűtés minden lakásban

Hűtő-fűtő klíma alapfelszereltségként

Garázs és parkolóállás vásárolható

Modern, letisztult belső terek

Minőségi burkolatok és nyílászárók

Kiváló infrastruktúra, boltok, iskolák, tömegközlekedés pár perc sétára

A társasház a belvárosban, mégis csendes, rendezett utcában található — ideális választás azoknak, akik a városi élet kényelmét keresik kompromisszumok nélkül.

Lakások mérete, ára és elérhetősége változó – kérje részletes tájékoztatónkat vagy tekintse meg a helyszínt személyesen!

Érdeklődni:Balla Anett Ingatlan&Bankbár

 

Kapcsolat

Balla Anett

Irodavezető

Ossza meg a hirdetést:
FacebookGplusTwitter