Nyitólap Hirdetésfeladás Kapcsolat

A vidék színe java
Eladó Téglalakás, Zalaegerszeg
#728500036
107.35 millió Ft
Alapterület 115 m2,  800 m2-es telken
Szobák száma 3 szoba
Építési mód Tégla
Állapot Új építésű
Emelet nincs megadva

További paraméterek

  • Kertkapcsolatos
  • Otthon Start 3%-os hitellel
  • Fűtés: Hőszivattyú
  • Szintek száma: 1
  • Energetika: A++

Részletes leírás

•99,8%-os pontossággal tartott költségvetési keret!
•Alapáron is A++ energiaosztály – minimális rezsiköltség, zöld technológia
•Több, mint 50 féle választható típusterv
Homes4You – Az okos döntés.
Keressen bizalommal! Mutatunk referenciát, segítünk a döntésben!
A feltüntetett ár tartalmazza a tervezést és teljes kivitelezést a lent csatolt műszaki tartalommal, és a telek vételárát is, 5% ÁFA-val.

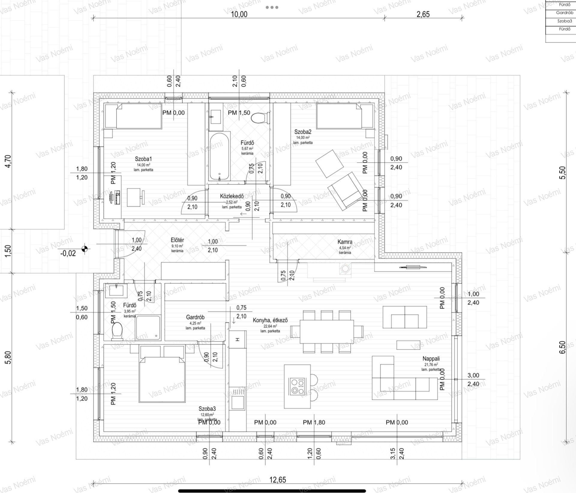
A Enikő típusház főbb adatai:
•Családok kedvence, privát szférával
••Bruttó alapterület: 136 m², nettó alapterület: 115 m²
••3 szobás elrendezés
••Alaprajz testreszabható – egyéni igények szerint alakítható
••Az ár a Fűtéskész állapotra és a kiválasztott telekre értendő

TELEK ÉS ELHELYEZKEDÉS – Zalaegerszeg
.
•A 800 m²-es terület egy csendes, nyugodt, övezetben fekszik.
•A telek ára: br. 20,5 M Ft – benne van a meghirdetett árban
•A terület nem a Homes4You tulajdona, de partnerünkön keresztül megvásárolható
•Más telek is választható naprakész adatbázisunkból
•Meglévő saját telekre is vállalunk építést országszerte!

MŰSZAKI TARTALOM – emelt fűtéskész kivitelben:
•Szigetelt vasalt lemezalap
•Liapor falazat (U=0,14 W/m²K) – téglaértékű, hőszigetelt
•30 cm cellulóz födém hőszigetelés •20 cm homlokzati EPS szigetelés
•Kommerling 3 rétegű műanyag nyílászárók •Bramac tetőcserép tetőfedés
•Hőszivattyús mennyezetfűtés-hűtés, hővisszanyerős szellőztetés
•Elektromos + gépészeti alapszerelés
•Aljzatbetonozás, gipszkartonozás •-napló


Miért a LIAPOR KÉSZHÁZAK az egyik legnépszerűbb választás?
•Tartós tégla anyagú vasbeton falazat, több 200+ év várható élettartam
•Minden bank finanszírozza (CSOK+, Babaváró, piaci hitelek – ügyintézéssel együtt)
•Átlag feletti hang- és hőszigetelő képesség
•Előre gyártás miatt, kevesebb élő munkaerő és hibalehetőség
•Gyors építési idő, falazat összeállítása 1 munkanap alatt

Miért a HOMES4YOU?
•Több mint 200 referencia projekt, rengeteg elégedett megrendelő
•3 bemutatópark (Siófok, Nyúl, Érd)
•Kulcsrakész átadás akár 4-6 hónapon belül
•99,8%-os pontossággal tartott költségvetési keret!
•Alapáron is A++ energiaosztály – minimális rezsiköltség, zöld technológia
•Több, mint 50 féle választható típusterv
Homes4You – Az okos döntés.
Keressen bizalommal! Mutatunk referenciát, segítünk a döntésben!
A Homes4You csapata

Kapcsolat

Vas Noémi

Irodavezető

Ossza meg a hirdetést:
FacebookGplusTwitter